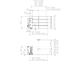
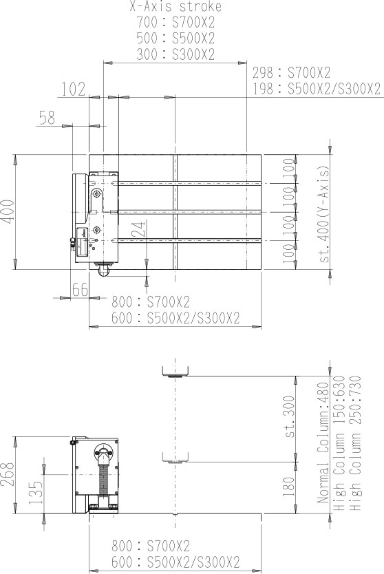
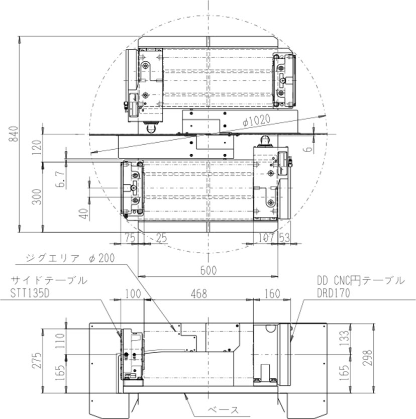
ダイレクトドライブ CNC円テーブル
ユキワのダイレクトドライブCNC円テーブル(ロータリーテーブル)は、ダイレクトドライブ(DD)モータを内蔵し、高速・バックラッシュレスを実現しました。自動車部品、IT関連部品をはじめとする部品加工に幅広く使用可能で、御社の生産の短納期化、低コスト化に大きく貢献します。
ブラザー工業製コンパクトマシニングセンタ SPEEDIO仕様
ユキワ精工製コントローラ AC5-60A仕様
DRD170
高速・高精度割出
高速・高トルク ダイレクトドライブモータを搭載し、早送り回転速度は200min-1、軽負荷時には300min-1までの高速割出が可能で、サイクルタイム短縮に大きく貢献します。さらに高分解能エンコーダを搭載し、累積15秒の高精度割出を実現します。
強力・高速クランプ
エア圧0.5MPa時には720Nmの高クランプ力を誇ります。さらにクランプとアンクランプの合計動作時間0.13秒とこちらもサイクルタイム短縮につながります。
クラス最薄でコンパクト
円テーブル本体の総厚さは160mmとコンパクト設計です。小型マシニングセンタを搭載しても広い治具エリアを確保できます。また、6ポートのロータリジョイントも取り付け可能です。

■ アブソリュート検出 ■ノーバックラッシュ ■抜群の防水性
■ブラザーSPEEDIO搭載用型式
| S300X2搭載用 | DRD170-BCM52S | |
| S500/S700X2搭載用 | DRD170-BCM52M | |
| F600X1搭載用 | DRD170-BCM52M | |
| R450X1搭載用 | DRD170-BPC51 | (両面パレット搭載) |
| DRD170-BPC51-1 | (片面パレット搭載) | |
| R650X2搭載用 | DRD170-BPC54 | (両面パレット1台搭載) |
| DRD170-BPC54-1 | (片面パレット搭載) |
- 取付金具とエアチューブは、標準付属。
- *1 オプションで、サブテーブルφ140 を用意。
- *2 積載物の許容値。
- *3 アンクランプとクランプ動作時間を含む。
- *4 アンクランプとクランプの合計。





